MAISON TG

Construction en lisière de forêt (25)

2015


MAISON TG TG_Berche/photos/02.jpg

COUPE LONGITUDINALE. Le profil des toitures permet de concrétiser de manière décisive le parti architectural : le volume sous rampant, très réduit, a été conçu pour faire partie intégrante de l'espace habitable afin d'optimiser le coût de construction et le volume à chauffer.

MAISON TG TG_Berche/photos/03.jpg

PLAN DU RDC. Les espaces de vie sont largement ouverts au Sud tandis qu'au Nord se trouvent les espaces servants et quelques ouvertures décisives pour la lumière et la vue.

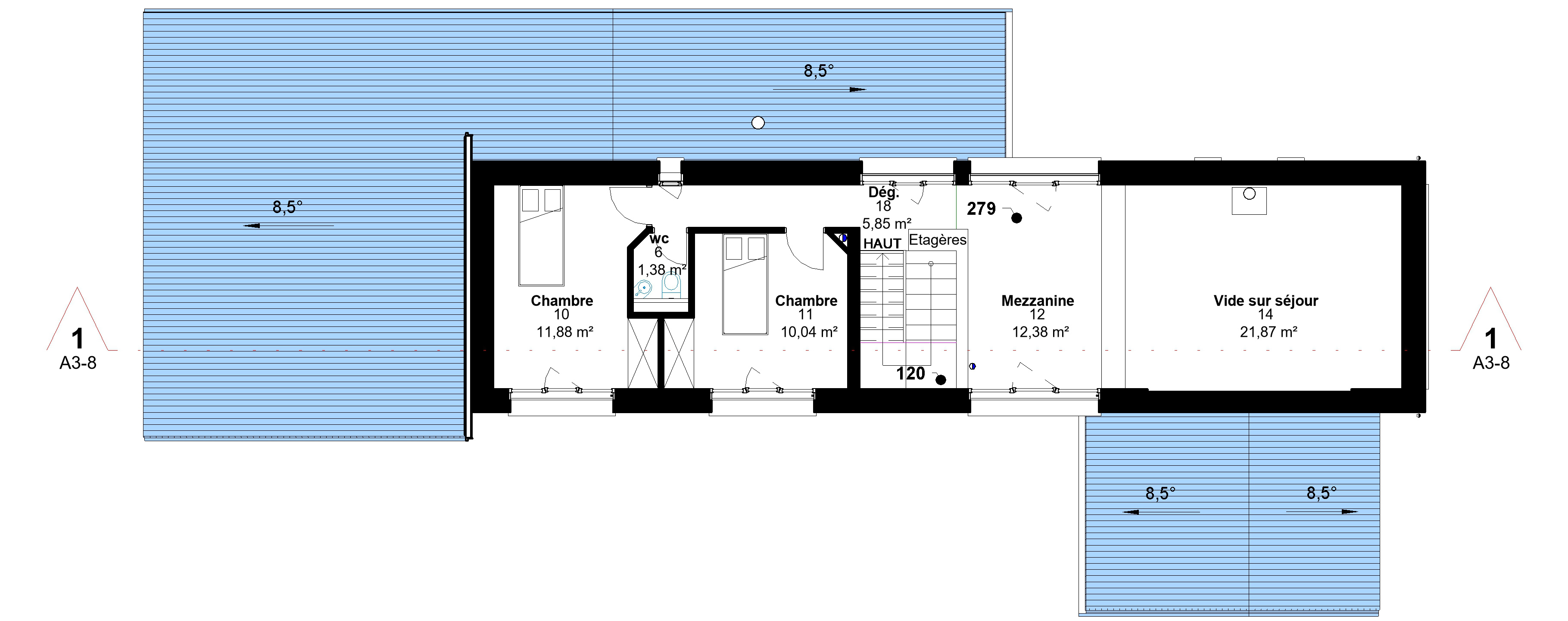
MAISON TG TG_Berche/photos/04.jpg

PLAN DE L'ETAGE.

MAISON TG TG_Berche/photos/05.jpg

Le garage prolonge la maison à l'Ouest et libère ainsi la façade sur rue d'un appendice proéminent ; il constitue par ailleurs un espace « tampon » avec la forêt, humide et ombragée.

MAISON TG TG_Berche/photos/06.jpg

La voie d'accès au garage est réalisée le long de la limite avec l'emprise publique afin d'exploiter la zone non constructible.

MAISON TG TG_Berche/photos/07.jpg
MAISON TG TG_Berche/photos/08.jpg

La faible pente des toitures dessine une silhouette générale familière vis-à-vis des autres maisons du quartier tout en épousant le terrain naturel. La couverture est assurée pour cette raison par des bacs acier nervurés. Les façades, enduites, sont protégées par les larges débords de ces toitures dont la sous-face est soulignée par un lambrissage en bois massif à claire-voie.

MAISON TG TG_Berche/photos/09.jpg
MAISON TG TG_Berche/photos/10.jpg
MAISON TG TG_Berche/photos/11.jpg
MAISON TG TG_Berche/photos/12.jpg
MAISON TG TG_Berche/photos/13.jpg
MAISON TG TG_Berche/photos/14.jpg
MAISON TG TG_Berche/photos/15.jpg

Les fenêtres exposées au Sud sont équipées de brise-soleil orientables qui permettent de réguler la lumière et les apports solaires.

MAISON TG TG_Berche/photos/16.jpg
MAISON TG TG_Berche/photos/17.jpg

MAISON TG

Construction en lisière de forêt (25)

NOTICE
Implantation et volumétrie ont été pliées au contexte proche. Le volume étroit (4,75 m de large et 25 m de long) exploite le terrain dans sa longueur plutôt qu'en profondeur. En positionnant ce volume au plus près de la limite Nord, la maison bénéficie d'un recul nécessaire à son intimité : les espaces de vie sont orientés vers le jardin ainsi dégagé et la forêt proche.

Compte tenu de l'exposition solaire défavorable, les apports thermiques sont essentiellement assurés par le système de chauffage. Une des préoccupations du projet a donc été l'optimisation énergétique de la construction :
- Dans la mesure où le terrain est essentiellement ensoleillé le matin pendant la saison froide, la construction est orientée 20° vers l'Est afin de capter les apports solaires le plus tôt possible.
- La légère surélévation du rdc de la maison et la création d'un étage permettent également de capter en hauteur un maximum de rayonnement solaire, en plus des vues sur le lointain.
- La volumétrie de la construction, étroite et étirée sur l'axe Est/Ouest, développe le maximum de surface de façade exposée au Sud.
- Les murs sont construits avec un bloc à isolation répartie (produit fabriqué localement à base de ciment et d'agrégats naturels expansés). En complément, ils sont isolés par l'intérieur afin d'obtenir une forte résistance thermique.
- Enfin, les doublages d'isolation sont réalisés en briques afin de procurer de l'inertie thermique à l'édifice.

La faible largeur de la construction permet par ailleurs d'optimiser la charpente et les planchers avec des portées courtes.

Cette recherche récurrente de performance est toujours menée parallèlement aux autres thématiques de l'architecture. La maison est notamment conçue pour instaurer une proximité avec le paysage : l'étroitesse du volume, le niveau altimétrique du rez-de-chaussée et les percements ont été définis pour satisfaire cet objectif. Circulations et espaces servis instaurent une relation permanente des occupants avec le paysage proche et lointain. Les chambres sont regroupées à l'Ouest où une relation privilégiée avec la forêt s'installe tandis que le séjour à l'Est bénéficie de larges ouvertures sur le lointain et le jardin.

PROGRAMME
- Rez-de-chaussée : garage.
- Rez-de-jardin : salon, séjour, cuisine, chambre, sanitaires, buanderie/chaufferie.
- Étage : deux chambres, sanitaires, bureau en mezzanine.

CARACTERISTIQUES PRINCIPALES
- Maître d’ouvrage : particuliers.
- Architecte : Office d'Architecture Virgile Guenot.
- BET thermique : Solarte.
- Mission : conception générale.
- Surface de plancher : 139 m².
- Coût des travaux : 210 000 euros HT.
- Structure : soubassement béton armé / murs en blocs isolants
- Charpente : bois.
- Couverture : bac acier nervuré.
- Isolation des parois : laine de roche (murs et toiture), PEX (sous plancher chauffant).
- Menuiseries extérieures : en bois avec double vitrage 4/16 (argon) /4 FE.
- Chauffage : granulés de bois.
- ECS : CET sur air extrait.

Site et chantier