CABINET DE KINESITHERAPIE

Centre de kinésithérapie à Le Boulou (66)

2018


CABINET
DE KINESITHERAPIE POMMEVERTE_LeBoulou/photos/02.jpg

LE SITE est un grand terrain plat dans une zone d'activité sans intérêt paysager. Dans ce type de situation, il revient à l'architecture de créer son propre monde afin d'accueillir les patients dans les meilleures conditions possibles.

CABINET
DE KINESITHERAPIE POMMEVERTE_LeBoulou/photos/03.jpg

L'implantation vise à optimiser la surface constructible afin d'aménager un jardin faisant pivot au sein de l'établissement ; telle une pièce supplémentaire à ciel ouvert, il accueille les usagers et leur apporte des vues apaisantes pendant leurs soins.

CABINET
DE KINESITHERAPIE POMMEVERTE_LeBoulou/photos/04.jpg

PERSPECTIVE (angle Nord-Est). Le jardin s'expose à la vue des deux ailes de l'établissement.

CABINET
DE KINESITHERAPIE POMMEVERTE_LeBoulou/photos/05.jpg

PERSPECTIVE (angle Sud-Ouest). La façade Sud, largement vitrée sur la piscine de soins et les box du cabinet, apporte confort thermique et lumière natuelle.

CABINET
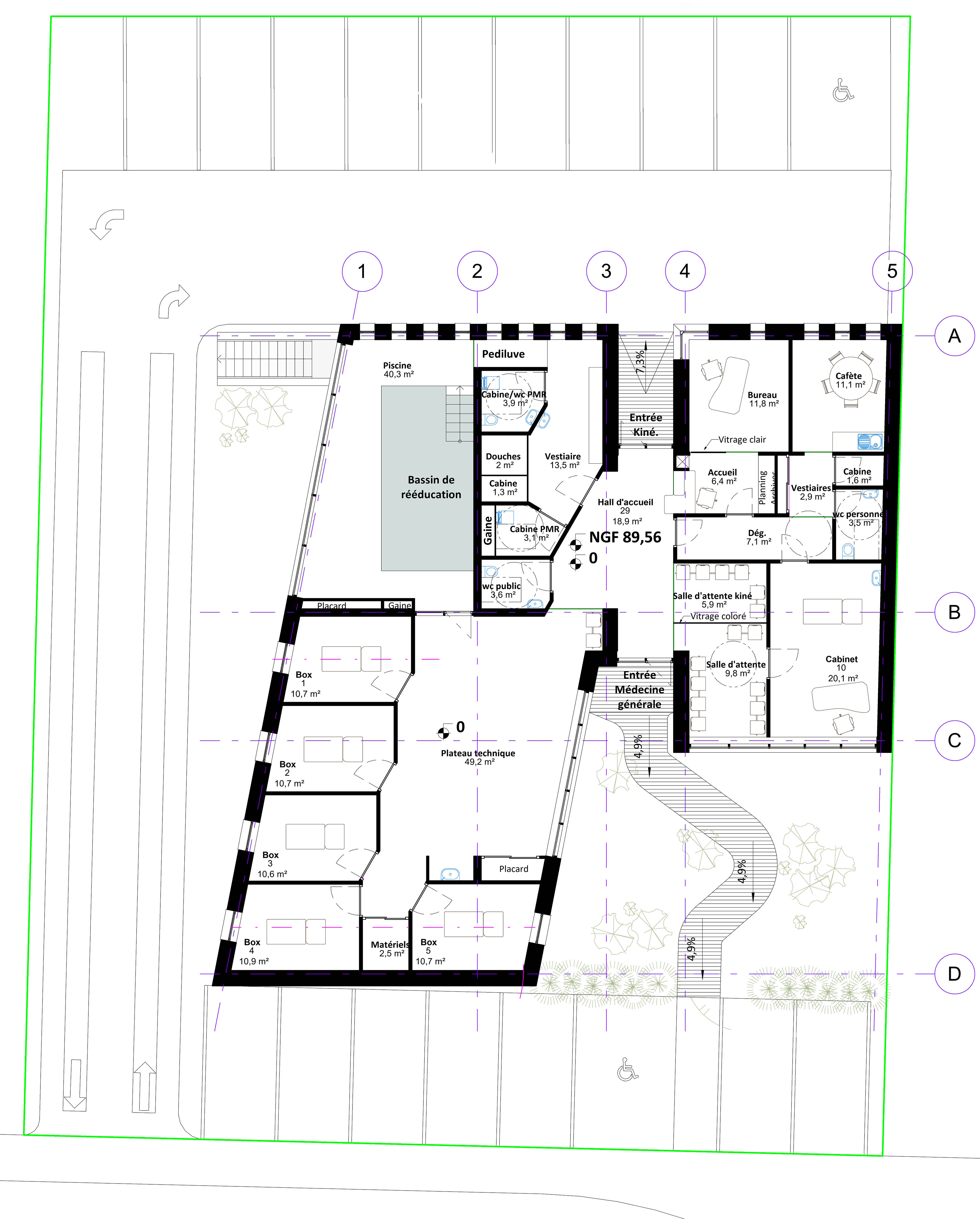
DE KINESITHERAPIE POMMEVERTE_LeBoulou/photos/06.jpg

PLAN DU RDC. L'accueil situé à l'articulation des deux ailes de l'établissement, distribue les différents espaces de soins : piscine, généraliste et kiné.

CABINET
DE KINESITHERAPIE POMMEVERTE_LeBoulou/photos/07.jpg

COUPE TRANSVERSALE sur la piscine.

CABINET
DE KINESITHERAPIE POMMEVERTE_LeBoulou/photos/08.jpg

COUPE TRANSVERSALE sur le cabinet de kiné.

CABINET
DE KINESITHERAPIE POMMEVERTE_LeBoulou/photos/09.jpg

La salle d'exercices et la piscine (à l'arrière plan) ont été conçues pour permettre une fluidité des circulations et des regards.

CABINET DE KINESITHERAPIE

Centre de kinésithérapie à Le Boulou (66)

PROGRAMME (SIMPLE RDC)
- Accueil commun, salle d'attente, bureaux, toilettes.
- Cabinet de kinésithérapie : compartiments de soins, rangements, salle d'exercices.
- Cabinet pour un généraliste avec salle d'attente dédiée.
- Piscine de soins avec sanitaires, vestiaires et local technique (sous-sol).

CARACTERISTIQUES PRINCIPALES
- Maître d’ouvrage : professionnels.
- Architecte : Office d'Architecture Virgile Guenot.
- Mission : esquisse.
- Surface de plancher : 300 m².
- Coût des travaux : 450 000 euros HT.
- Structure : soubassement maçonné / charpente et ossature bois.
- Couverture : bac acier nervuré.
- Chauffage / refroidissement : PAC.
- VMC : double-flux basse consommation / déshumidificateur.
- Production électrique : générateur photovoltaïque de 10 kWc.